Property Details
Property Details
Property Details
31302 Andres Pico, San Juan Capistrano, CA 92675
$788,000 LOGIN TO SAVE
31302 Andres Pico, San Juan Capistrano, CA 92675
Bedrooms:
span widget
Bathrooms:
span widget
span widget
Area: SqFt.
Description
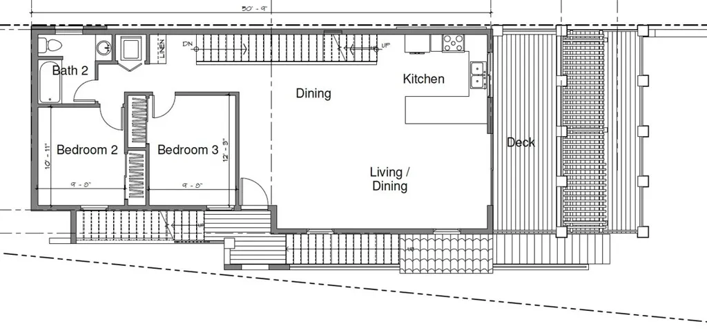
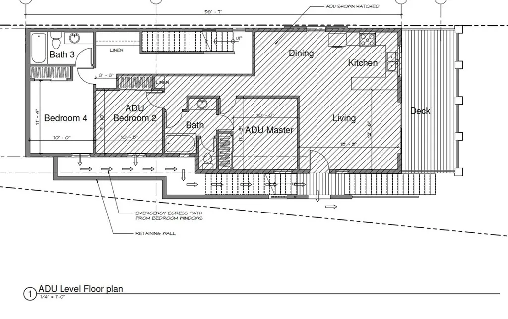
Property is located in an Opportunity Zone, which has significant tax benefits. Own it for 10 years and pay ZERO federal capital gains tax when you sell. Exceptional opportunity to build on one of the few remaining lots in San Juan Capistrano Mission Hills area. Imagine being walking distance to the vibrant and historic downtown and Mission area of SJC. Walk to your favorite local shops and dining locations in less than 10 minutes and then head back to enjoy the wonderful views from your own private rooftop deck. Rooftop deck has panoramic view with views of the Mission. Permit ready for SFR +ADU. City approved plans with multiple variances approved by Planning Commission to optimize the space. Plans are ready to pull permits and start construction. Plans include 4 bedrooms and 3.5 baths for the main unit with a rooftop deck with beautiful hillside views and possible views of the Mission from atop. Great rooftop entertaining space with plans for an outdoor kitchen, TV, and overhead covers. Plans include a 2 car grade level garage. The 2nd unit is a 2 bedroom and 2 bath ADU that can be rented separately. There was a lot of time and money spent to get these approvals.
Features
Listing provided courtesy of Scott Ayres of Bay Property Management & Rlty. Last updated . Listing information © 2025 Sandicor.




































