Property Details
Property Details
Property Details
3720 La Hacienda, San Bernardino, CA 92404
$589,000 LOGIN TO SAVE
3720 La Hacienda, San Bernardino, CA 92404
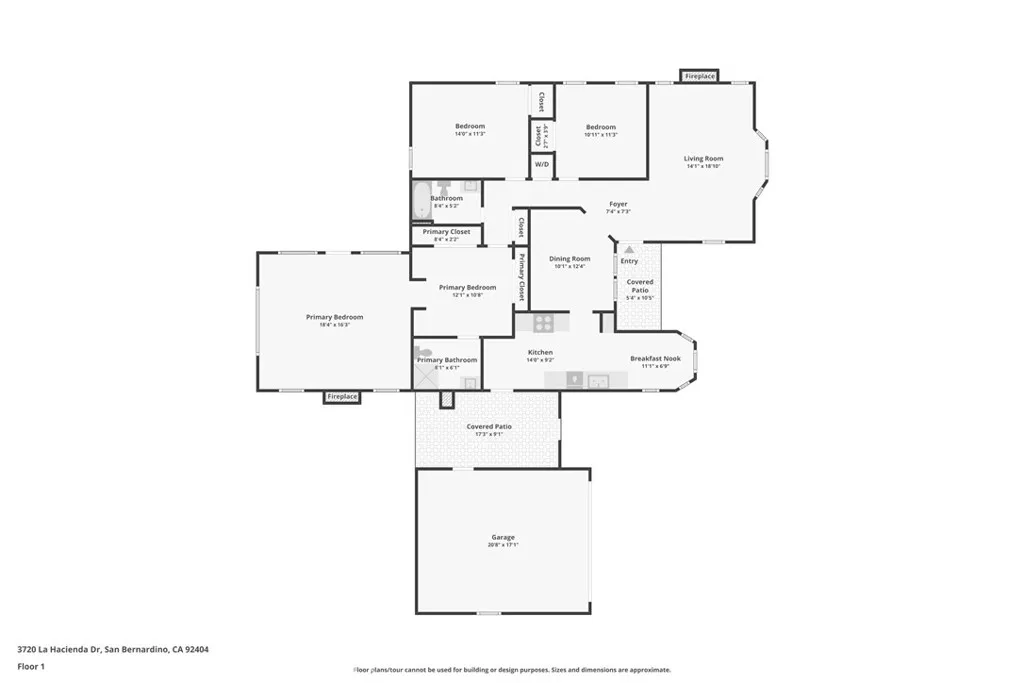
Bedrooms: 3
span widget
Bathrooms: 2
span widget
span widget
Area: 1678 SqFt.
Description
$10.000 Forgivable Grant Available Welcome to this beautifully remodeled custom pool home featuring 3 bedrooms and 2 bathrooms. This move-in-ready residence showcases custom flooring and designer paint throughout, creating a fresh and modern feel. The brand-new kitchen offers updated cabinetry, countertops, and finishes, perfect for everyday living and entertaining. Both bathrooms have been fully remodeled with contemporary upgrades and stylish details. Step outside to a spacious backyard designed for family gatherings and entertaining, complete with a refreshing pool and ample space to relax or host guests. Conveniently located close to the freeway, this home offers easy access while still providing comfort and privacy. A true must-see for buyers seeking quality, style, and functionality.
Features
Listing provided courtesy of Wilfred Olguin of eHomes. Last updated . Listing information © 2025 Sandicor.



































































