Property Details
Property Details
Property Details
1000 Butte, Big Bear, CA 92314
$150,000 LOGIN TO SAVE
1000 Butte, Big Bear, CA 92314
Bedrooms:
span widget
Bathrooms:
span widget
span widget
Area: SqFt.
Description
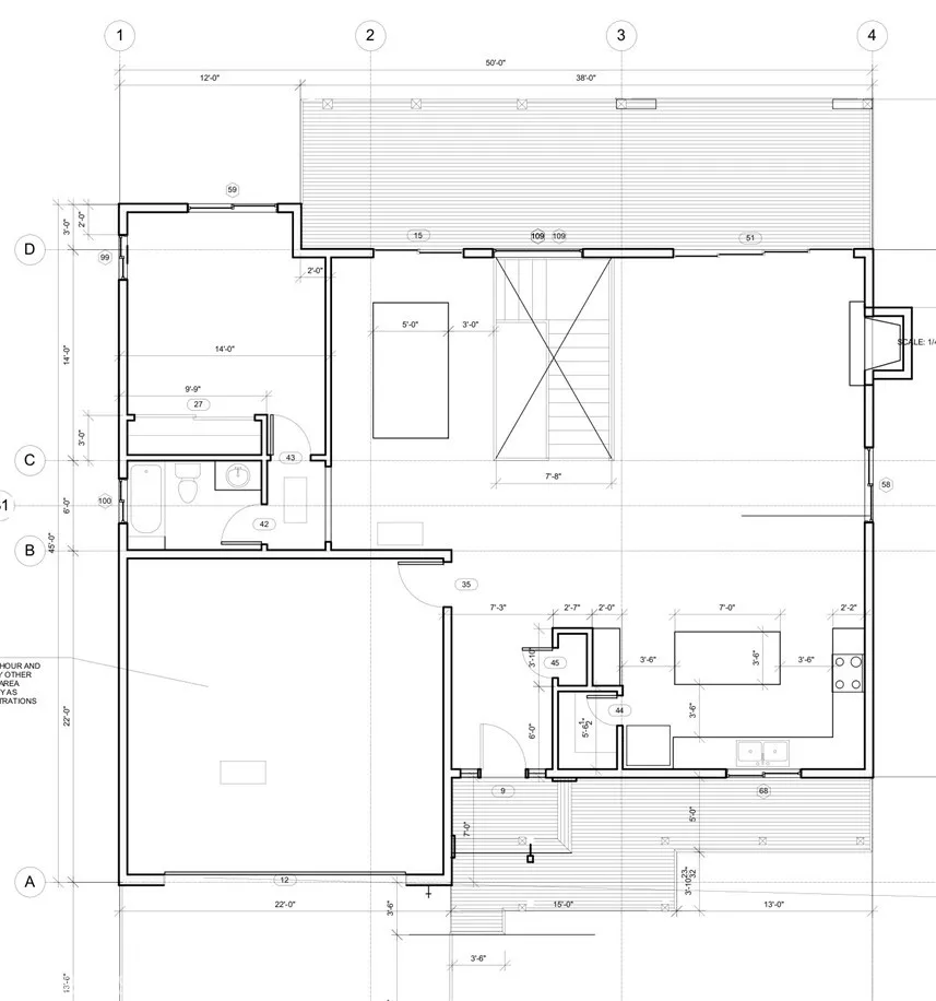
Beautifully treed downslope lot in desirable Moonridge area of Big Bear City. This 7,200 SF (90 x 80) parcel offers an exceptional opportunity to build your dream mountain home! A sewer line runs along the back of the property at the lowest point, allowing for a gravity-flow system no pump is required. All utilities are available. The sale includes a complete set of architect-designed building plans for a stunning two-story, 3,500 SF residence featuring 5 bedrooms and 3 baths, plus soils report, property survey, and letters from utility companies confirming service connections. Five architectural renderings and the floor plan are available in the listing photos. This is a ready-to-go package just bring your vision to life! Perfect for an investor, builder, or anyone seeking a turn-key opportunity to create a custom home in one of Big Bears most sought-after neighborhoods. Includes all plans, reports, and documentation.
Features
Listing provided courtesy of Janet Stevens-Moore of BRUIN TROJAN REALTORS, INC. Last updated . Listing information © 2025 Sandicor.






















